les COLLINES DE L’ARCHE
ACE Architectes a été sollicité pour étudier le changement de destination d’un immeuble de bureaux en établissement d’enseignement supérieur. Ce projet ambitieux implique une restructuration technique, structurelle et réglementaire importante du bâtiment afin de porter sa capacité d’accueil de 550 à 2 000 personnes. Les travaux d’envergure ont nécessité le dépôt d’un permis de construire, obtenu en seulement trois mois, permettant d’engager rapidement la phase opérationnelle.
MOA
Sofidy
LIEU
La Défense – Puteaux
SURFACE
8 500 m²
MISSION ACE
FAISA – APS – PC et CONFORMITÉ TRAVAUX
DURÉE DES TRAVAUX
13 mois
LIVRAISON
Sept. 2026
CERTIFICATIONS
BREEAM In Use – Very Good ; HQE
WiredScore – Gold
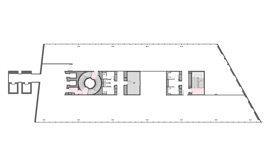
Transformation d’un immeuble de bureaux en établissement d’enseignement supérieur
L’opération visait à densifier l’immeuble en portant chaque plateau à 200 postes. La restructuration du noyau, du compartimentage et des circulations verticales – escaliers, ascenseurs et réseaux – a permis de garantir et d’améliorer les performances, l’accessibilité et la sécurité. La réflexion globale a ouvert la possibilité d’un découpage multilocataires, chaque entité disposant d’entrées indépendantes.
En parallèle des études, ACE Architectes a accompagné la maîtrise d’ouvrage dans la commercialisation de son actif. Ce travail mené en synergie a permis de concevoir les espaces de manière stratégique, en anticipant les attentes des futurs preneurs.

équipe
AMO – ARTELIA / PREVENTIONNISTE : CASSO&ASSOCIES / BET FLUIDES : SEDRI / BET STRUCTURE : ANCA / BUREAU DE CONTROLE : BTP CONSULTANTS / BET ENVIRONNEMENT : OASIIS
Tous les projets
